Kompozit DECK Lambri Serisi | Cephe ve Duvar Kaplama | Türkiye Kompozit

Kompozit DECK Lambri Serisi | Cephe ve Duvar Kaplama | Türkiye Kompozit

Kompozit DECK Lambri Serisi | Cephe ve Duvar Kaplama | Türkiye Kompozit

**Türkiye Kompozit** üretimi **Kompozit Lambri Serisi**, iç ve dış mekân cephe kaplamalarında estetik, dayanıklılık ve bakım kolaylığı sunan modern yapı elemanlarıdır. Ahşap görünümlü yüzeyiyle sıcak bir atmosfer yaratırken, WPC teknolojisi sayesinde uzun ömürlü ve çevre dostu bir çözüm sağlar.

**Teknik Özellikler:** 

- **Malzeme:** WPC (Wood Plastic Composite) – %60 ahşap tozu, %30 HDPE, %10 katkı maddesi 

- **Kesitler:** 150×10 mm, 200×15 mm, 219×26 mm, 250×30 mm vb. 

- **Uzunluklar:** 2200 mm, 2900 mm, 3600 mm (özel kesim yapılabilir) 

- **Yüzey:** Düz, oluklu, fırçalı veya ahşap desenli 

- **Montaj:** Klipsli sistem, vida veya alüminyum karkas ile uygulanabilir 

**Avantajları:** 

- UV ışınlarına, suya ve neme karşı yüksek direnç 

- Çatlama, solma, küflenme ve böceklenmeye karşı koruma 

- Boya, vernik ve bakım gerektirmez 

- Isı ve ses yalıtımına katkı sağlar 

- Geri dönüştürülebilir, çevre dostu üretim 

- Ahşap görünümünü modern teknolojiyle birleştirir 

**Kullanım Alanları:** 

- Dış cephe kaplama sistemleri 

- İç mekân duvar dekorasyonları 

- Villa ve konut cepheleri 

- Kentsel dönüşüm projeleri 

- Otel, AVM ve ofis binaları 

- Pergole ve veranda kaplamaları 

Lambri serisi inceliği ve birbirine geçme sistemi ile dekorasyonda zarifliği ön plana çıkaran, iç ve dış  mekanlarda cephe, duvar ve tavan kaplamalarında, seperatör, kapı ve korkuluk uygulamalarında kullanılan lambri serisi, yüksek yoğunluklu Polietilen ve organik ahşap tozu karışımından üretilen kompozit deck ürünümüzdür. 

Lambri deck kaplamalarının yapıldığı mekanı daha sıcak ve rahat kılar. Lambrinin kullanıldığı yerlerde şık ve temiz bir görünüm elde edilir. 

Darbeye ve ateşe dayanıklı, iç ve dış mekanlarda bakım gerektirmeden uzun yıllarca kullanabileceğiniz korozyon dayanımı yüksek ürünlerdir.

Su emmesi, şişmek, renk solması, çatlama, parçalanma, kıymıklanma, yosun tutma ve çürüme bu ürünlerde gerekleşmez.

Modern ve şık görünüme sahip çevre dostu geri dönüştürülebilen ürünlerdir.

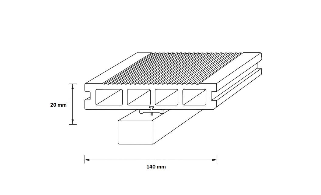
Teknik Özellikleri : 

L : 3000 mm - W : 140 mm - H : 20 mm

Ağırlık : 6.24 kg / adet

Renk Seçenekleri : 

Sütlü Kahve - Koyu Kahve - Antrasit Gri - Ceviz - Kiremit - Yeşil - Bej

 

 


Kompozit DECK Lambri Serisi | Cephe ve Duvar Kaplama | Türkiye Kompozit Fotoğraf Galerisi

Türkiyenin her yerine kargo ile ürünlerimizi gönderiyoruz.

Türkiye genelinde bayilerimiz vardır.

Türkiye genelindeki şehirler.

Adana, Adıyaman, Afşin, Afyonkarahisar, Ağrı, Akhisar, Aksaray, Akşehir, Alanya, Alaşehir, Amasya, Ankara, Antakya, Antalya, Aydın, Balıkesir, Bandırma, Bartın, Batman, Bergama, Bilecik, Bingöl, Birecik, Bismil, Bitlis, Bolu, Bozüyük, Burdur, Burhaniye, Bursa, Çankırı, Çarşamba, Ceyhan, Ceylanpınar, Cizre, Çorlu, Çorum, Denizli, Didim, Diyarbakır, Doğubayazıt, Düzce, Düziçi, Edirne, Edremit, Elazığ, Elbistan, Erbaa, Erdemli, Ergani, Erzurum, Eskişehir, Fatsa, Fethiye, Gaziantep, Gaziantep, Giresun, Gönen, Hakkâri, Hatay, Iğdır, İnegöl, İskenderun, Isparta, İstanbul, İzmir, İzmit, Kadirli, Kahramanmaraş, Kâhta, Kapaklı, Karabük, Karacabey, Karadeniz, Karaköprü, Karaman, Kars, Kastamonu, Kayseri, Kayseri, Kırıkhan, Kırıkkale, Kırklareli, Kızıltepe, Kocaeli, Konya, Kozan, Kuşadası, Kütahya, Lüleburgaz, Malatya, Manavgat, Manisa, Mardin, Mersin, Merzifon, Midyat, Milas, Muğla, Mustafakemalpaşa, Nazilli, Nevşehir, Niğde, Ödemiş, Ordu, Orhangazi, Osmaniye, Pamukkale, Polatlı, Reyhanlı, Rize, Safranbolu, Sakarya, Samandağ, Samsun, Şanlıurfa, Şanlıurfa, Serik, Siirt, Silifke, Silopi, Silvan, Şırnak, Sivas, Siverek, Söke, Suruç, Tarsus, Tatvan, Tavşanlı, Tekirdağ, Tire, Tokat, Trabzon, Turgutlu, Urfa, Uşak, Van, Yalova, Yozgat, Yüksekova, Adana, Aladağ, Ceyhan, Çukurova, Feke, İmamoğlu, Karaisalı, Karataş, Kozan, Pozantı, Saimbeyli, Sarıçam, Seyhan, Tufanbeyli, Yumurtalık, Yüreğir, Adıyaman, Besni, Çelikhan, Gerger, Gölbaşı, Kahta, Merkez, Samsat, Sincik, Tut, Afyonkarahisar, Başmakçı, Bayat, Bolvadin, Çay, Çobanlar, Dazkırı, Dinar, Emirdağ, Evciler, Hocalar, İhsaniye, İscehisar, Kızılören, Merkez, Sandıklı, Sinanpaşa, Sultandağı, Şuhut, Ağrı, Diyadin, Doğubayazıt, Eleşkirt, Hamur, Merkez, Patnos, Taşlıçay, Tutak, Amasya, Göynücek, Gümüşhacıköy, Merzifon, Suluova, Taşova, Merkez, Ankara, Akyurt, Altındağ, Ayaş, Bala, Beypazarı, Çamlıdere, Çankaya, Çubuk, Elmadağ, Evren, Gölbaşı, Güdül, Haymana, Kağızman, Kalecik, Kızılcahamam, Keçiören, Nallıhan, Polatlı, Pursaklar, Sincan, Şereflikoçhisar, Yenimahalle, Merkez, Antalya, Akseki, Aksu, Alanya, Demre, Döşemealtı, Elmalı, Finike, Gazipaşa, Gündoğmuş, İbradı, Kaş, Korkuteli, Kemer, Kepez, Konyaaltı, Manavgat, Serik, Merkez, Artvin, Ardanuç, Arhavi, Borçka, Hopa, Kemalpaşa, Murgul, Şavşat, Yusufeli, Merkez, Aydın, Bozdoğan, Buharkent, Çine, Didim, Efeler, Germencik, İncirliova, Karacasu, Karpuzlu, Köşk, Kuşadası, Kuyucak, Nazilli, Söke, Sultanhisar, Yenipazar, Merkez, Balıkesir, Altıeylül, Ayvalık, Balya, Bandırma, Bigadiç, Burhaniye, Dursunbey, Edremit, Erdek, Gömeç, Gönen, Havran, İvrindi, Kepsut, Manyas, Marmara, Savaştepe, Sındırgı, Susurluk, Merkez, Batman, Beşiri, Gercüş, Hasankeyf, Kozluk, Merkez, Sason, Bayburt, Aydıntepe, Merkez, Bilecik, Bozüyük, Gölpazarı, İnhisar, Merkez, Osmaneli, Pazaryeri, Söğüt, Yenipazar, Bingöl, Adaklı, Genç, Karlıova, Kiğı, Merkez, Solhan, Yayladere, Yedisu, Bitlis, Adilcevaz, Ahlat, Güroymak, Hizan, Merkez, Mutki, Tatvan, Bolu, Dörtdivan, Gerede, Göynük, Kıbrıscık, Mengen, Merkez, Mudurnu, Seben, Yeniçağa, Burdur, Ağlasun, Burdur Merkez, Bucak, Gölhisar, Karamanlı, Kemer, Tefenni, Yeşilova, Bursa, Akçalar, Gemlik, Gürsu, İnegöl, Kestel, Mudanya, Mustafakemalpaşa, Nilüfer, Osmangazi, Orhangazi, Yenişehir, Yıldırım, Keles, Karacabey, Orhaneli, Çanakkale, Ayvacık, Bayramiç, Biga, Bozcaada, Çan, Eceabat, Ezine, Gelibolu, Gökçeada, Lapseki, Merkez, Yenice, Çankırı, Atkaracalar, Bayramören, Çankırı Merkez, Çerkeş, Eldivan, Ilgaz, Kızılırmak, Kurşunlu, Orta, Şabanözü, Yapraklı, Çorum, Alaca, Bayat, Boğazkale, Çorum Merkez, İskilip, Kargı, Laçin, Mecitözü, Oğuzlar, Ortaköy, Osmancık, Sungurlu, Uğurludağ, Denizli, Acıpayam, Babadağ, Baklan, Bekilli, Bozkurt, Buldan, Çal, Çameli, Çardak, Çivril, Denizli Merkez, Güney, Honaz, Kale, Merkezefendi, Pamukkale, Sarayköy, Tavas, Diyarbakır, Bağlar, Bismil, Çermik, Çınar, Dicle, Eğil, Ergani, Hazro, Hani, Kocaköy, Kulp, Lice, Silvan, Sur, Yenişehir, Düzce, Akçakoca, Cumayeri, Çilimli, Düzce Merkez, Gölyaka, Gümüşova, Kaynaşlı, Yığılca, Edirne, Enez, Havsa, İpsala, Keşan, Lalapaşa, Merkez, Süloğlu, Uzunköprü, Elazığ, Ağın, Alacakaya, Arıcak, Baskil, Elazığ Merkez, Karakoçan, Keban, Kovancılar, Maden, Palu, Sivrice, Erzincan, Çayırlı, Erzincan Merkez, İliç, Kemah, Kemaliye, Otlukbeli, Refahiye, Tercan, Üzümlü, Erzurum, Aşkale, Aziziye, Çat, Hınıs, Horasan, İspir, Karaçoban, Karayazı, Köprüköy, Narman, Oltu, Olur, Palandöken, Pasinler, Pazaryolu, Şenkaya, Tekman, Tortum, Uzundere, Yakutiye, Eskişehir, Alpu, Beylikova, Çifteler, Günyüzü, Han, İnönü, Mahmudiye, Mihalgazi, Mihalıççık, Odunpazarı, Sarıcakaya, Seyitgazi, Sivrihisar, Gaziantep, Araban, İslahiye, Karkamış, Nizip, Nurdağı, Oğuzeli, Şahinbey, Şehitkamil, Yavuzeli, Giresun, Alucra, Bulancak, Çamoluk, Çanakçı, Dereli, Eynesil, Espiye, Görele, Güce, Keşap, Piraziz, Tirebolu, Yağlıdere, Merkez, Gümüşhane, Kelkit, Köse, Kürtün, Şiran, Torul, Merkez, Hakkâri, Çukurca, Merkez, Şemdinli, Yüksekova, Hatay, Altınözü, Antakya, Arsuz, Ayvacık, Defne, Dörtyol, Erzin, Hassa, İskenderun, Kırıkhan, Kumlu, Payas, Reyhanlı, Samandağ, Yayladağı, Iğdır, Aralık, Iğdır Merkez, Tuzluca, Isparta, Atabey, Eğirdir, Gelendost, Gönen, Keçiborlu, Merkez, Senirkent, Sütçüler, Şarkikaraağaç, Yalvaç, Yenişarbademli, İstanbul, Adalar, Arnavutköy, Ataşehir, Avcılar, Bağcılar, Bahçelievler, Bakırköy, Başakşehir, Bayrampaşa, Beşiktaş, Beykoz, Beylikdüzü, Beyoğlu, Büyükçekmece, Çatalca, Çekmeköy, Esenler, Eyüpsultan, Fatih, Gaziosmanpaşa, Güngören, Kadıköy, Kağıthane, Kartal, Küçükçekmece, Maltepe, Pendik, Sancaktepe, Sarıyer, Şile, Silivri, Sultanbeyli, Sultangazi, Şişli, Tuzla, Ümraniye, Üsküdar, Zeytinburnu, İzmir, Aliağa, Balçova, Bayındır, Bayraklı, Bergama, Beydağ, Bornova, Buca, Çeşme, Çiğli, Dikili, Foça, Gaziemir, Güzelbahçe, Karabağlar, Karaburun, Karşıyaka, Kemalpaşa, Kınık, Kiraz, Konak, Menderes, Menemen, Narlıdere, Ödemiş, Seferihisar, Selçuk, Tire, Torbalı, Urla, Kahramanmaraş, Afşin, Andırın, Çağlayancerit, Dulkadiroğlu, Ekinözü, Elbistan, Göksun, Nurhak, Onikişubat, Pazarcık, Türkoğlu, Karabük, Eflani, Eskipazar, Merkez, Ovacık, Safranbolu, Yenice, Karaman, Ayrancı, Başyayla, Ermenek, Karaman Merkez, Kazımkarabekir, Sarıveliler, Kars, Akyaka, Arpaçay, Digor, Kağızman, Merkez, Sarıkamış, Selim, Susuz, Kastamonu, Abana, Ağlı, Araç, Azdavay, Bozkurt, Cide, Çatalzeytin, Daday, Devrekani, Doğanyurt, Hanönü, İnebolu, Küre, Merkez, Pınarbaşı, Şenpazar, Seydiler, Taşköprü, Tosya, Kayseri, Akkışla, Bünyan, Develi, Felahiye, Hacılar, İncesu, Kocasinan, Melikgazi, Pınarbaşı, Sarıoğlan, Sarız, Tomarza, Yahyalı, Yeşilhisar, Kayseri Merkez, Kilis, Elbeyli, Merkez, Musabeyli, Polateli, Kırıkkale, Balışeyh, Delice, Keskin, Merkez, Sulakyurt, Yahşihan, Karakeçili, Kırklareli, Babaeski, Demirköy, Kofçaz, Lüleburgaz, Merkez, Pehlivanköy, Pınarhisar, Vize, Kırşehir, Akçakent, Akpınar, Boztepe, Kaman, Merkez, Mucur, Kocaeli, Başiskele, Çayırova, Darıca, Dilovası, Gebze, Gölcük, İzmit, Kandıra, Karamürsel, Kartepe, Körfez, Konya, Akkışla, Akşehir, Altınekin, Beyşehir, Bozkır, Cihanbeyli, Çeltik, Çumra, Derbent, Derebucak, Doğanhisar, Emirgazi, Ereğli, Güneysınır, Hadim, Halkapınar, Hüyük, Ilgın, Kadınhanı, Karapınar, Kulu, Meram, Sarayönü, Selçuklu, Seydişehir, Taşkent, Tuzlukçu, Yalıhüyük, Merkez, Kütahya, Altıntaş, Aslanapa, Çavdarhisar, Domaniç, Dumlupınar, Emet, Gediz, Hisarcık, Merkez, Pazarlar, Şaphane, Simav, Tavşanlı, Malatya, Akçadağ, Arapgir, Arguvan, Battalgazi, Darende, Doğanşehir, Doğanyol, Hekimhan, Kale, Kuluncak, Pütürge, Yazıhan, Yeşilyurt, Merkez, Manisa, Alaşehir, Akhisar, Demirci, Gördes, Gölmarmara, Kırkağaç, Kula, Merkez, Sarıgöl, Saruhanlı, Selendi, Soma, Şehzadeler, Turgutlu, Yunusemre, Mardin, Dargeçit, Derik, Kızıltepe, Mazıdağı, Midyat, Nusaybin, Ömerli, Savur, Merkez, Mersin, Akdeniz, Anamur, Aydıncık, Bozyazı, Çamlıyayla, Erdemli, Gülnar, Mezitli, Mut, Silifke, Tarsus, Toroslar, Yenişehir, Muğla, Bodrum, Dalaman, Datça, Fethiye, Köyceğiz, Marmaris, Milas, Menteşe, Ortaca, Ula, Yatağan, Muş, Bulanık, Hasköy, Korkut, Malazgirt, Merkez, Varto, Nevşehir, Avanos, Derinkuyu, Gülşehir, Hacıbektaş, Kozaklı, Nevşehir Merkez, Niğde, Bor, Çamardı, Merkez, Ulukışla, Ordu, Akkuş, Altınordu, Aybastı, Fatsa, Gölköy, Gülyalı, Gürgentepe, İkizce, Kabadüz, Kabataş, Korgan, Kumru, Mesudiye, Perşembe, Ulubey, Ünye, Osmaniye, Bahçe, Düziçi, Hasankeyf, Kadirli, Merkez, Sumbas, Toprakkale, Rize, Ardeşen, Çamlıhemşin, Çayeli, Derepazarı, Fındıklı, Güneysu, İkizdere, Merkez, Pazar, Sakarya, Akyazı, Hendek, Karasu, Kaynarca, Kocaali, Pamukova, Sapanca, Serdivan, Serinhisar, Söğütlü, Taraklı, Adapazarı, Erenler, Karapürçek, Samsun, Alaçam, Atakum, Ayvacık, Bafra, Canik, Çarşamba, Havza, İlkadım, Kavak, Ladik, Ondokuzmayıs, Salıpazarı, Tekkeköy, Terme, Vezirköprü, Yakakent, Siirt, Baykan, Eruh, Kurtalan, Pervari, Siirt Merkez, Şirvan, Sinop, Ayancık, Boyabat, Dikmen, Durağan, Erfelek, Gerze, Merkez, Türkeli, Sivas, Akıncılar, Altınyayla, Divriği, Doğanşar, Gemerek, Gölova, Gürün, Hafik, İmranlı, Kangal, Koyulhisar, Merkez, Suşehri, Şarkışla, Ulaş, Yıldızeli, Zara, Şanlıurfa, Akçakale, Birecik, Bozova, Ceylanpınar, Halfeti, Haliliye, Harran, Hilvan, Karaköprü, Siverek, Suruç, Viranşehir, Eyyübiye, Şırnak, Beytüşşebap, Cizre, Güçlükonak, İdil, Merkez, Silopi, Uludere, Şırnak Merkez, Tekirdağ, Çerkezköy, Çorlu, Ergene, Hayrabolu, Kapaklı, Marmara, Ereğlisi, Malkara, Merkez, Muratlı, Saray, Şarköy, Tokat, Almus, Artova, Başçiftlik, Erbaa, Niksar, Pazar, Reşadiye, Sulusaray, Turhal, Zile, Tokat Merkez, Trabzon, Akçaabat, Araklı, Arsin, Beşikdüzü, Çarşıbaşı, Çaykara, Dernekpazarı, Düzköy, Hayrat, Köprübaşı, Maçka, Of, Ortahisar, Sürmene, Tonya, Şalpazarı, Vakfıkebir, Yomra, Tunceli, Çemişgezek, Hozat, Mazgirt, Nazımiye, Ovacık, Pertek, Pülümür, Tunceli Merkez, Uşak, Banaz, Eşme, Karahallı, Merkez, Sivaslı, Ulubey, Van, Bahçesaray, Başkale, Çatak, Edremit, Erciş, Gevaş, Gürpınar, İpekyolu, Muradiye, Özalp, Van Merkez, Yalova, Altınova, Armutlu, Çınarcık, Çiftlikköy, Merkez, Termal, Yozgat, Akdağmadeni, Boğazlıyan, Çayıralan, Çekerek, Kadışehri, Sarıkaya, Sorgun, Şefaatli, Yerköy, Yozgat Merkez, Yenifakılı Zonguldak, Alaplı, Çaycuma, Devrek, Ereğli, Gökçebey, Kilimli, Kozlu, Merkez